BRU9950900-01

Cable Trench

The operation and maintenance manual provides details on the maximum cable trench width for areas where the equipment will be positioned over a trench.

NOTICE
HAZARD OF INCORRECT CABLE INSTALLATION
Ensure to handle the cable bend with utmost care. Comply with the bend radius specified by the cable manufacturer.
Failure to follow these instructions can result in equipment damage.

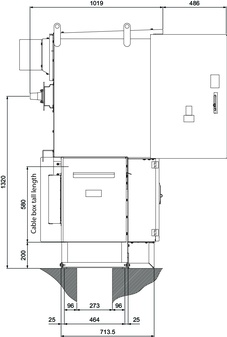
Cable Trench – RN2 AIR TX Mounted

Cable Trench – RN2 AIR Standalone

Single and Three Cable Core Floor Fittings

QR Code is a registered trademark of DENSO WAVE INCORPORATED in Japan and other countries.

Was this helpful?